ID CP2837260

Hală industrială 2.000 mp Otopeni | Rampe TIR | ISU | Acces DN1 & Centură

ID CP2837260

12,000 € + 21% TVA

Spațiu industrial de închiriat
Sud, Otopeni
2,000 mp
2018

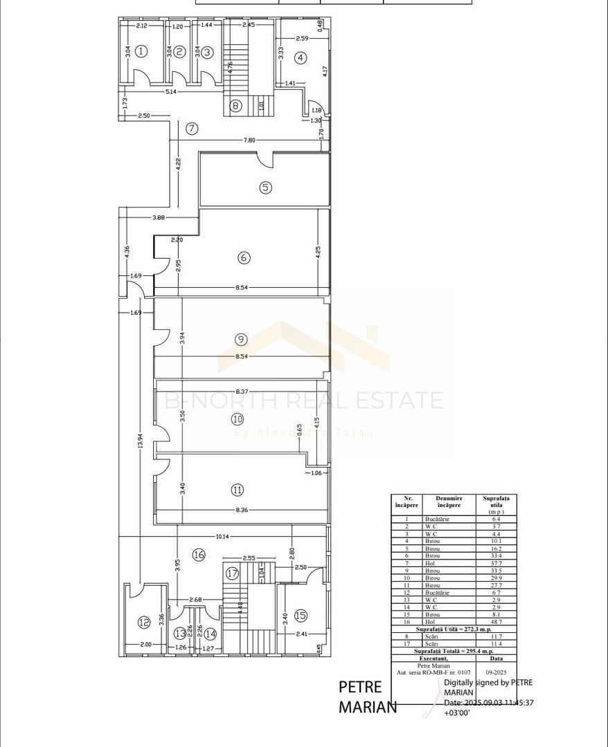
B-North Real Estate vă propune spre închiriere o hală industrială modernă, ideală pentru logistică, distribuție sau producție, situată strategic în zona Otopeni – Sud, cu acces rapid către DN1, Centură și Aeroport.

📐 Specificații tehnice:

Suprafață totală: 2.000 mp

Hală: 1.708 mp

Birouri: 300 mp (etaj)

Regim: Parter + Etaj

An construcție: 2018

Disponibilitate: imediată

⚙️ Dotări & facilități:

3 rampe de încărcare (ideal logistică)

Acces TIR facil

Curent trifazic (380V)

Spații birouri integrate în hală

Vestiare, grupuri sanitare, dușuri

Luminatoare – eficiență energetică

Autorizație ISU

Curte generoasă: 1.500 mp

Aproximativ 30 locuri parcare

📍 Avantaje locație:

Acces rapid DN1 & Centură București

Aproape de Aeroport Otopeni

Zonă logistică activă

Acces facil pentru transport greu

💼 Ideal pentru:

✔ Logistică & distribuție

✔ Depozitare

✔ E-commerce / fulfilment

✔ Producție ușoară

✔ Showroom + depozit

💰 Preț:

12.000 €/lună + TVA (hala)

1.000 €/lună (curte 1.500 mp)

Pentru detalii suplimentare, planuri sau vizionare, vă invităm să ne contactați.

Proprietatea poate fi adaptată în funcție de necesitățile chiriașului.

Citește mai mult

  • Tip imobil
    Hală
  • Etaj
    1
  • Număr camere
    7
  • An construcție
    2018
  • Construcție nouă
    Da
  • Număr locuri parcare
    30
  • Suprafață construită
    2,000 mp
  • Suprafață utilă
    2,000 mp
  • Suprafață totală birouri
    300 mp
  • Suprafață producție
    1,708 mp
  • Înălțime interioară
    9.5
  • Disponibilitate
    Imediat
  • Compartimentare spațiu
    Open space

Facilități

Acces auto
Acces TIR
Apă
Canalizare
Curent
Curent trifazic (380V)
Gaz
La șosea
Luminatoare
Mijloace de transport în comun
Parcare deschisă
Străzi asfaltate
Teren împrejmuit
Uși de acces
Vestiar
Alexandra Tărău - B-North Real Estate
Alexandra Tărău
Manager

0774004974


Solicită chiar acum o vizionare
Telefon
Sună acum Solicită vizionare
Necesare:

Site-ul nu poate funcționa corect fără aceste cookie-uri. Vezi cookie-urile

Statistică:

Strângem statistici anonime despre voi, vizitatorii unici, pentru a vă îmbunătăți experiența dumneavoastră. Vezi cookie-urile

Marketing:

Pentru a ne promova mai eficient serviciile noastre, folosim cookies pentru a vă identifica și a vă oferi proprietăți și servicii personalizate. Vezi cookie-urile

Acest site folosește cookies, află detalii. Alege ce tipuri de cookies dorești să permitem: